新城市广场
- 建筑面积:
- 开 发 商:
- 物业公司:
- 项目地址:
- 13,400平米
- 北京金百联创资产管理有限公司
- 北京百联潮驿企业管理有限公司
- 北京市朝阳区朝阳路十里堡乙2号
租赁热线:18601096277
楼盘简介我们为您提供了一系列完善的配套服务
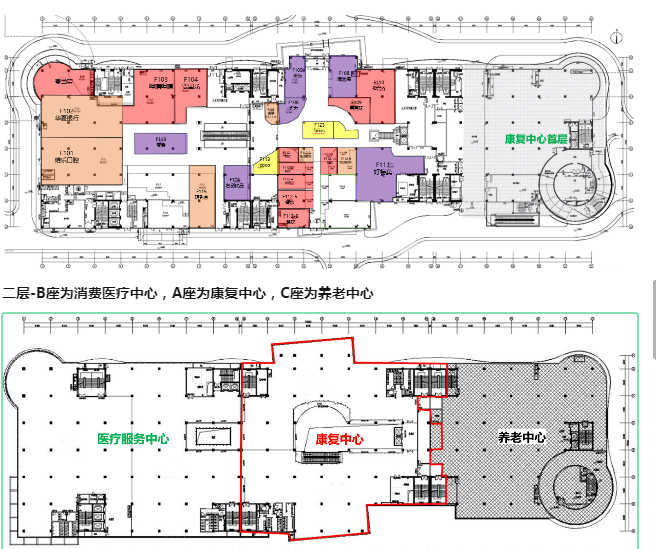
新城市广场数智生命医疗健康综合体位于北京市朝阳区朝阳路十里堡乙2号;地下3岑地上5层,2008年建成;集康复中心、养老中心、健康中心、护理中心、检测中心、消费医疗等,及医疗配套商业于一体的多功能融合载体
•康复中心(A座)面积:13000㎡
•养老中心(C座)面积:12000㎡
•数智医疗服务中心(B座)面积:13400㎡



